deutsch
english
vita
skills
contact
300m fussleiste
bilbao
schwimmzentrum
amsterdam
oslo
oslo
ludwig
g&p
/// hotel bilbao
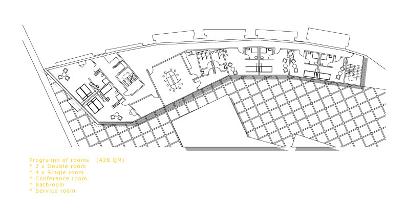
_5.floor
hotel bilbao site 14
hotel bilbao site 13
hotel bilbao site 12
hotel bilbao site 11
hotel bilbao site 10
hotel bilbao site 9
hotel bilbao site 8
hotel bilbao site 7
hotel bilbao site 6
hotel bilbao site 5
hotel bilbao site 4
hotel bilbao site 3
hotel bilbao site 2
hotel bilbao site 1